ID CP2750724

Spatiu flexibil pretabil pt. after school, gradinita, clinica medicala

ID CP2750724

2,500 €

Spațiu comercial de închiriat
Central, Sebes
1,600 mp
1980

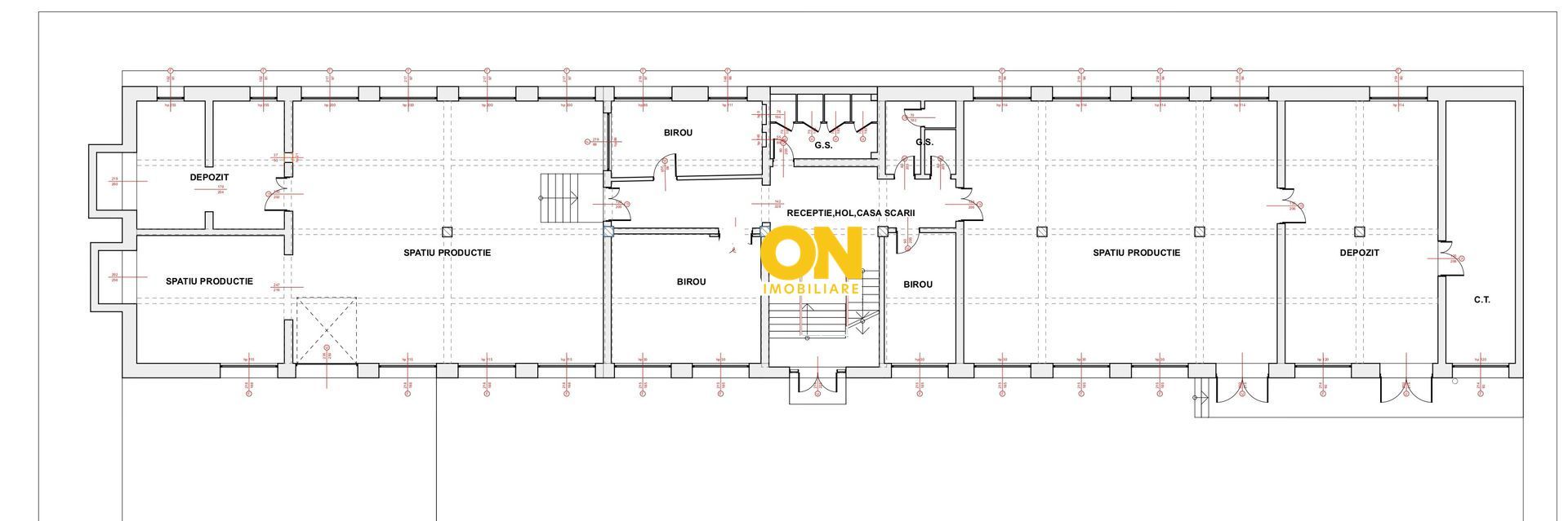
AON Imobiliare vă prezintă un spațiu cu un potențial deosebit, ideal pentru activități care necesită vizibilitate, acces facil și o suprafață mare, precum clinică medicală, grădiniță, after-school sau birouri de mari dimensiuni.

Localizare Premium: Imobilul este situat ultracentral în Sebeș, în imediata apropiere a Pieței Agroalimentare, beneficiind de trafic pietonal și auto intens și acces rapid din orice zonă.

Caracteristici Cheie:

• Destinație Multiplă: Ideal pentru servicii medicale, educaționale, sedii de firme, reprezentanțe.

• Flexibilitate: Suprafața totală utilă este de 1600 mp (clădire cu regim P+1), dar se oferă și posibilitatea de a închiria parțial această suprafață, adaptându-se strict la nevoile dumneavoastră.

• Personalizare: Spațiul permite amenajare și compartimentare personalizată în funcție de specificul activității.

• Parcare Privată: Un avantaj major este curtea privată cu o suprafață de 500 mp, oferind locuri de parcare suficiente pentru clienți și personal.

Investiți în locația perfectă pentru dezvoltarea afacerii dumneavoastră! Spațiul oferă condițiile și dimensiunea necesară pentru a crea un mediu profesional, primitor și funcțional.

Vă invităm la vizionare pentru a discuta detaliile de amenajare și închiriere!

ID intern: CP2750724

Citește mai mult

  • Tip imobil
    Depozit
  • Trafic pietonal
    Intens
  • Etaj
    Parter, 1
  • Număr camere
    12
  • Număr băi
    2
  • Suprafață construită
    1,780 mp
  • Suprafață utilă
    1,600 mp
  • Suprafață teren
    1,500 mp
  • Disponibilitate
    Imediat
  • Compartimentare spațiu
    Flexibil
  • Număr locuri parcare
    20
  • An construcție
    1980
  • Număr etaje clădire
    1

Facilități

Apă
Canalizare
Centrală termică
Curent
Gaz
Parcare deschisă
Adrian Curta - AON Imobiliare
Adrian Curta
Broker Imobiliar

0725893459


Solicită chiar acum o vizionare
Telefon
Sună acum Solicită vizionare
Necesare:

Site-ul nu poate funcționa corect fără aceste cookie-uri. Vezi cookie-urile

Statistică:

Strângem statistici anonime despre voi, vizitatorii unici, pentru a vă îmbunătăți experiența dumneavoastră. Vezi cookie-urile

Marketing:

Pentru a ne promova mai eficient serviciile noastre, folosim cookies pentru a vă identifica și a vă oferi proprietăți și servicii personalizate. Vezi cookie-urile

Acest site folosește cookies, află detalii. Alege ce tipuri de cookies dorești să permitem: